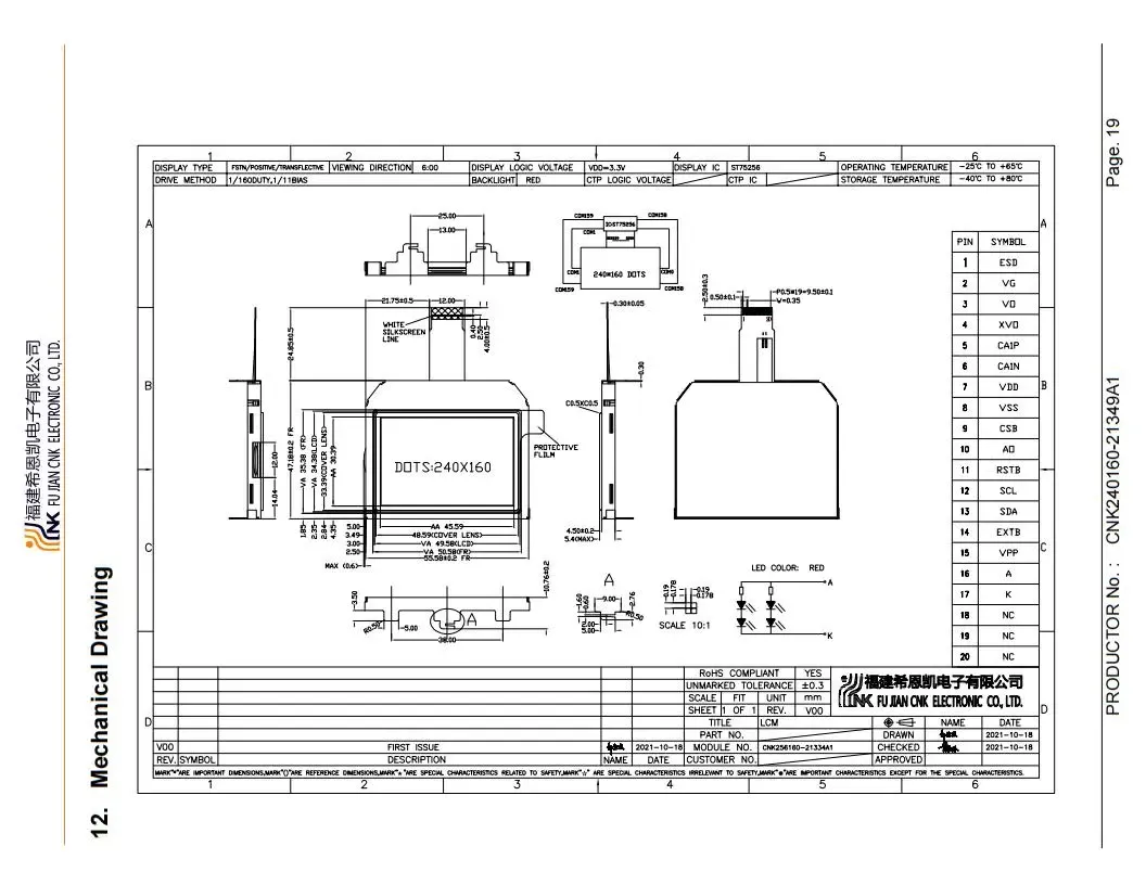
| Артикал | Спецификација |
| Величина модула | 55.58 (В) к47.18 (х) к5.4 (т) мм |
| Површина приказа приказа (Ленс) | 48,59 (В) к33,39 (х) мм |
| Површина приказа приказа (ЛЦД) |
49,58 (В) к34.38 (х) мм |
| Режим приказа |
ФСТН позитивно трансфлективно |
| Погледајте ИЦ |
6 сати |
| Дривер ИЦ |
СТ75256 (или компатибилно) |
| Позадинско осветљење |
ЛЕД / Црвено |
| Тежина | Тбд |


